iswinoujscie.pl • Środa [30.08.2017, 10:47:13] • Świnoujście
Karsibór. Rusza budowa bulwaru i nowoczesnej przystani kajakowej

fot. Urząd Miasta Świnoujście
Do września przyszłego roku ma zakończyć się budowa nowej przystani kajakowej na wyspie Karsibór. Zastąpi istniejące zdewastowane nabrzeże, slip oraz prowizoryczny pomost. Wartość inwestycji wraz z pracami projektowymi to ponad 2 mln złotych, z czego niemal 500 tys. złotych to dofinansowanie z Regionalnego Programu Operacyjnego Województwa Zachodniopomorskiego.
- Ta inwestycja zdecydowanie wzmocni potencjał tej pięknej, nie do końca jeszcze odkrytej, części naszego miasta. Wyspa Karsibór i jej okolice to idealne miejsce do uprawiania turystyki wodnej. Nowoczesna przystań z pewnością przyczyni się do jej rozwoju – mówi Prezydent Świnoujścia Janusz Żmurkiewicz i dodaje: - Jest pierwszą z zaplanowanych na tej wyspie inwestycji, dzięki którym Karsibór rozwinie się turystycznie.
Wykonawca – szczeciński Zakład Robót Hydrotechnicznych i Podwodnych „UW Service” sp. z o.o. – został wybrany w drodze przetargu. W miniony poniedziałek Miasto podpisało z nim umowę, a tym samym wykonawca przejął teren pod budowę przystani. Zakres rzeczowy umowy obejmuje przygotowanie dokumentacji projektowej oraz budowę przystani kajakowej, w tym również aktualizację przebiegu i oznakowania szlaku kajakowego „44 Wysp”, nadzór inwestorski i promocję projektu.

fot. Urząd Miasta Świnoujście
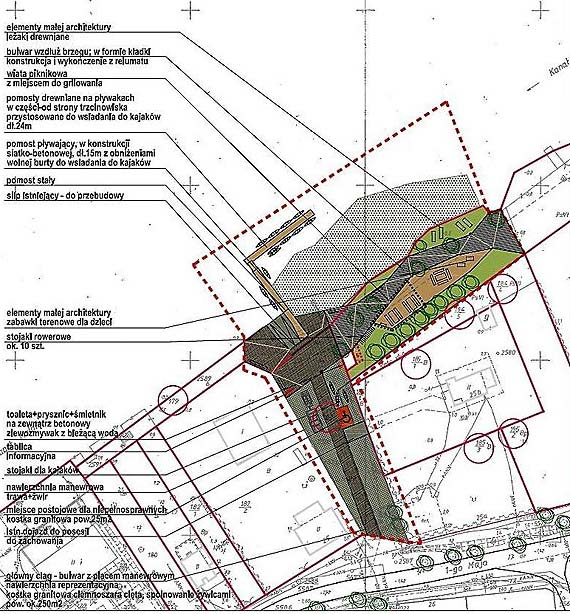
Nowa przystań obejmuje dwa obszary: teren położony pomiędzy ulicą 1-go Maja a istniejącym slipem oraz nadbrzeżny, znajdujący się na wschód od slipu. W pierwszej części powstaną: nowa droga, miejsca parkingowe, tablice informacyjne oraz stojaki na rowery i do przechowywania kajaków. W drugiej na początek zlikwidowane zostaną istniejące ogrodzenie i zdewastowane dotychczasowe elementy stanowiące zagospodarowania tego terenu.
W zamian powstanie deptak spacerowy – bulwar wzdłuż przystani z toaletami, miejscem na ognisko oraz zadaszonym na grilla. Do tego mała architektura, czyli leżaki, miejsca do siedzenia, urządzenia zabawowe dla najmłodszych. Istotną częścią inwestycji będzie przebudowa slipu i przyległego do niej nabrzeża, budowa stałego pirsu oraz pływające pomosty o długości 15 i 24 metrów wraz z dostępem do energii elektrycznej. Całość przystani wraz z bulwarem będzie oświetlona lampami LED.
Inwestycja została dofinansowana z Europejskiego Funduszu Rozwoju Regionalnego w ramach Regionalnego Programu Operacyjnego Województwa Zachodniopomorskiego na lata 2014 – 2020.
BIK UM Świnoujście
Zlikwidować wstrętne rybaczówki jak obiecano prawie 20 lat temu i zrobić w końcu ładny bulwar!! Gdzie jest miasto i zapewnienie odpowiedniej odległości od lini brzegowej ora zdostępu do niej?! Wszystko zagrodzone niezgodnymi z prawem i niebezpiecznie zakończonymi ogrodzeniami. Jak kiedyś jakiś dzieciak będzie się tam topił i nie będzie można mu pomóc to wtedy się miasto ruszy?!
K i e d y r o z b i o r ą t e w ę d k a r s k i e s l a m s y ??
Byłbym bardzo zadowolony jak by zaczęto budowę nowej ulicy głównej / KANAŁOWA / co odciąży ulice 1-go Maja od najazdu taboru cięszkiego / na planach od lat 70 tych/, z pełną infraktostrurą /KOLEKTOR ŚCIEKOWY, SIEĆ ENERGETYCZNY, telekumunikacja, ścieszki rowerowe, wodociągowa z ulcą WARZYWNĄ włącznie. Panie prezydencie, a gdzie podziały się pieniądze na kanalizacjie Karsiborza od ministra ochrony srodowaiska. To co dzieje się teraz nie przystoi XXI wiek. panie prezydencie, nie pudrowanie za złotówke.
Wpis został usunięty ze względu na złamanie prawa lub regulaminu serwisu przez użytkownika/Admin
Czekamy na obiecany slip i pomost w Ognicy!! Nie wspomnę już o dokończeniu ścieżki rowerowej !!
No dobrze, teraz widac o co chodzi. Slip i tak tam jest, calkiem solidny, dbaja o niego miejscowi/zainteresowani. Ale niech i tak bedzie, zeby nie bylo ze negujemy wszystko co zrobi miasto. Zagospodaruja to miejsce i bedzie OK. Ale powtarzam:)))) Obiecany slip w Ognicy musi powstac bez zadnej rozmowy...
A BUDY Z BANGLADESZU TO CO WIZYTOWKA?
O poprawili obrazek.
Co ze slipem w Ognicy sie pytam?? Przeniesiono plac zabaw z centrum Ognicy nad wode gdzie jest okropnie niebezpiecznie nie tylko ze wzgledu na wode ale i ze wzgledu na to iz umieszczono plac zabaw wsrod gruzowiska i smietnisa. Wystajace prety zbrojeniowe i gruz to standard... Bo sie" komus: nie podobalo miejsce poprzednie... Niby miejsce na slip jest ale nie wyslipujesz bo inestycja nie wykonczona. Jesli to sie nie zmieni do wyborow to kilku nas motorowodniakow z pobliskich terenow wraz z rodzinami nie zapomni o tym w trakcie wyborow. Wiec ani obecny gospodarz miasta ani przez niego namaszczony nie bedzie mial naszych glosow. Tyle mozemy. Mamy do tego prawo :)
A kiedy znikną ohydne budy, miał być deptak oraz ścieżka rowerowa z chodnikiem dla pieszych. Znowu cisza. A poruszanie się po ulicy 1 Maja jest bardzo niebezpieczne.
Jakis chlopak na opak to kreślił...
A kawałeczek dalej na wschód i za jednym pociągnięciem kawałek plaży?
polowe rozkradnie kryska z synami
Brawo dla UM, zrobcie jeszcze porzadek z tymi budkami Rybackimi, a KARSIBORZ posunie sie o 20 lat do przodu.Brawo UM>Dziekujemy
Miałam nadzieję, że ten betonowy sarkofag tak daleko nie sięgnie, smutne
No a niby jak? Przecierz komputer nie ma nóg.
Ze ja sie w szkole nie uczylem stac na glowie... Znaczy uczylem sie, ale nie nauczylem sie... :):):)
do gury nogamy pszeciesz
Super sprawa dobrze przemyślane przyszłość dla ludzi z kożystam.
Rzut planów inwestycji to jak mam oglądać ? Komputer przewrócić do góry nogami żeby odczytać informację, kto takie coś w BIK-u wrzucił do internetu.
no żeż...nie można było obrócić tego obrazka?